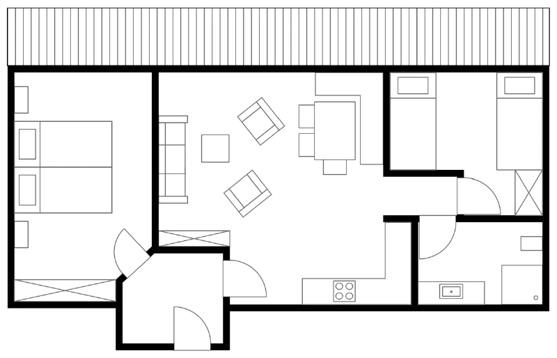
Ferienwohnung 333

Entspannen Sie in dieser einladenden 68 qm großen Ferienwohnung im 1. Obergeschoss, die mit ihrem südlichen Balkon eine herrliche Aussicht und viel Sonnenlicht bietet. Die Wohnung verfügt über zwei komfortable Schlafzimmer und einen lichtdurchfluteten Wohnbereich mit einer modernen Küchenzeile, Flat-TV und kostenlosem WLAN. Diese Unterkunft eignet sich ideal für Paare oder Familien mit bis zu 4 Personen, die einen ruhigen und erholsamen Urlaub verbringen möchten.

Ausstattung:

2 Schlafzimmer - Küchenzeile - Flat-TV - Kostenloses WLAN - Balkon nach Süden - Babybett & Babyphone auf Anfrage - Komplette Wäscheausstattung - Endreinigung inklusive - Allergiker geeignet - Keine Haustiere

Basis-Preis (Inkl. 2 Gästen): 80€/ Nacht
Jeder weitere Gast: 10€/ Nacht